Never Ever Settle,

Never Ever Stand Still,

find the space that fits

you, and the bill

accommodation schedule

  • Ground FloorWest

    3,312 sq ft / 307 sq m

    Available Now

  • Ground FloorEast

    3,198 sq ft / 297 sq m

    Available Now

  • Part First FloorWest

    4,131 sq ft / 384 sq m

    Available Now

  • Third Floor

    9,736 sq ft / 904 sq m

    Available Now

  • Sixth Floor

    7,435 sq ft / 690 sq m

    Coming Soon

Floor sq ft sq m Availability
Sixth 7,435 Cat A Coming Soon
Third 9,736 Fully Fitted AVAILABLE NOW
Part First 4,131 Cat A AVAILABLE NOW
Ground Floor East 3,198 Fully Fitted AVAILABLE NOW
Ground Floor West 3,312 Fully Fitted AVAILABLE NOW
Total 27,812

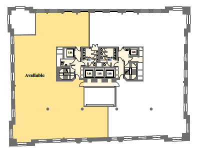
Low Density Space Plan

Low Density Space Plan

summary specification

  • Island site
  • Double height reception
  • Three lifts
  • Excellent natural light throughout
  • Four pipe fan coil air conditioning
  • Full access raised floor
  • 50 lockers
  • 5 showers (including disabled access)
  • Secure cycle strorage
  • Plug & Play suites on ground and third floors
  • LED lights